Cuisine centrale et restaurant administratif à La Hague (50)
Maître d’Ouvrage : Ville de La Hague
Surface plancher : 1 090 m²
Coût travaux : 4,88M€ HT
Statut du projet : Livraison Août 2025
Maîtrise d’Œuvre : DÉESSE 23 architecte mandataire, OTEIS Rennes BE structure-fluides, BEGC cuisiniste, ERGONOVA ergonome, IGC économiste
Photographie : DÉESSE 23 architectes
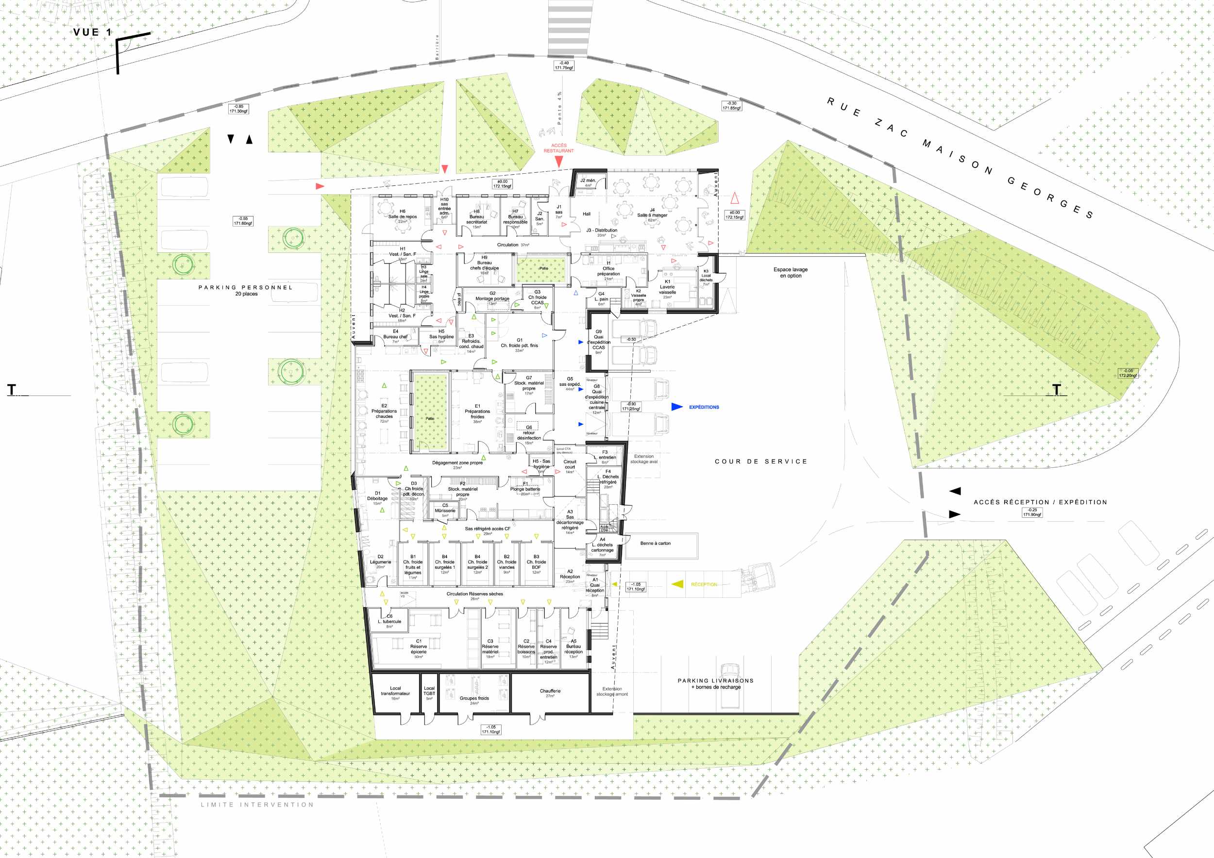
Située à l’Est de la commune de La Hague, la construction de la nouvelle Cuisine Centrale vient en remplacement de la cuisine existante sur un site à proximité de cette dernière.
Afin d’atteindre un objectif d’ensemble cohérent, nous proposons une implantation qui oriente et dialogue avec un contexte immédiat. Cette implantation tient compte des contraintes climatiques, d’accès, de fonctionnement et d’intégration.
L’objectif de notre projet est avant tout de proposer une cuisine centrale performante et optimisée, qui se doit d’être un lieu de travail fonctionnel, mais également ergonomique, pensé pour la qualité de travail du personnel.
Nous avons proposé un projet fonctionnel avec une volumétrie simple mais affirmée. Un projet en accord avec son fonctionnement intrinsèque, lié à l’organisation d’une cuisine centrale, de l’approvisionnement des denrées à l’expédition des repas.
L’usage du bâtiment induit une formalisation architecturale que nous avons cherché à « magnifier » par une écriture forte : une couverture commune à l’ensemble des espaces forme un « pliage » propice à répondre aux différents besoins en hauteurs de locaux, accompagné de creux dans les façades générant des auvents protecteurs et ponctué de patios apportant une lumière naturelle au cœur de l’équipement. Nous avons opté pour un projet en « L » au creux duquel vient se loger la cour de service, légèrement encaissée, ainsi masquée depuis la rue et protégée des vents dominants.














